ĐANG BÁN

2 PN, Tòa PR5, khu Paris, Vinhomes Ocean Park

Đa Tốn, Gia Lâm, Thành phố Hà Nội

Mã tin đăng: SAUN1677

Tiêu chuẩn bàn giao: Hoàn thiện

4,83 tỷ

75,41 triệu/m²

Đã bao gồm toàn bộ Thuế, Phí

64,00 m²

Diện tích thông thuỷ

Ước tính khoản vay

năm

Trả lãi theo dư nợ giảm dần
  • Vốn tự có
  • Vốn vay
  • Tiền lãi cần trả

Tổng số tiền gốc và lãi phải trả

VNĐ

Thanh toán gốc và lãi tháng đầu

VNĐ

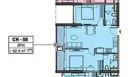
Chi tiết căn

Vị trí tầng 8
Phòng ngủ 2
Toilet 2
Diện tích tim tường 70,00 m²
Diện tích thông thuỷ 64,00 m²
Hướng ban công Đông Bắc
View Tòa PR6
Thông tin pháp lý Hợp đồng mua bán & chưa bàn giao
Tình trạng bàn giao Chưa bàn giao
Tình trạng nội thất Nội thất cơ bản
Tình trạng sử dụng Đang để trống
Khu Paris
Dự án Vinhomes Ocean Park

Bản đồ khu vực

Giới thiệu khu Paris

Tên dự án Vinhomes Ocean Park
Chủ đầu tư Vinhomes
Hình thức sở hữu Đang cập nhật
Tổng diện tích Đang cập nhật
Mật độ xây dựng Đang cập nhật
Quy mô phát triển 5 tòa căn hộ
Thời điểm khởi công Đang cập nhật
Tiến độ Đang xây dựng
Khu Paris
  • The Paris nằm bên cạnh biểu tượng San Hô Đỏ, cổng chào khu đô thị Vinhomes Ocean Park. Đây là một trong những vị trí đắt giá bên trong Vinhomes Ocean Park, bao bọc xung quanh là 3 trục giao thông huyết mạch, bao gồm đường Lý Thánh Tông là trục giao thông chính của huyện Gia Lâm, nối giữa quốc lộ 5A & 5B (Cao tốc Hà Nội – Hải Phòng); và đường Đại Dương & Hải Đăng là 2 trục đường chính của Vinhomes Ocean Park, nên kết nối nội – ngoại khu rất tiện lợi.

  • Nằm ngay cạnh bộ đôi công viên chủ đề GYM & BBQ lớn nhất Vinhomes Ocean Park, được tô điểm bởi bãi cát trắng thoải dài và những rặng dừa xanh rợp bóng, công viên hồ San Hô không chỉ mang đến không gian trong lành khoáng đạt mà còn cả những hoạt động vui chơi thư giãn tuyệt vời tới cư dân The Paris.

  • Quy mô gồm 05 tòa tháp (cao từ 30-38 tầng), tổng cộng 3.144 căn hộ thuộc phân khúc cao cấp. Dự án có đa dạng loại hình từ Studio đến 3 Phòng ngủ, với diện tích linh hoạt từ 27m² đến 97m².

  • The Paris còn quy tụ hệ thống tiện ích trong nhà đẳng cấp tương tự 3 khu The Zurich, The Beverly, The London. Bên cạnh sảnh lễ tân + sảnh tiếp khách sang trọng, mỗi tòa căn hộ The Paris còn dành 2 tầng tòa nhà (tầng 1 + 2) làm khu tiện ích trong nhà, bao gồm: phòng trà, phòng rượu, phòng tập GYM, phòng yoga, phòng golf 3D, phòng vui chơi dành cho người lớn & trẻ nhỏ, phòng sinh hoạt cộng đồng vv… chỉ phục vụ cho cư dân tòa nhà.

  • Tại The Paris, mọi nhu cầu từ nghỉ ngơi, giải trí đến chăm sóc sức khỏe đều được đáp ứng đầy đủ. Sau một ngày làm việc căng thẳng, hãy thử tưởng tượng bạn được thả mình vào làn nước trong xanh, mát lành của bể bơi vô cực Infinity Oasis rộng 1.000m². Không gian này không chỉ mang lại sự thư thái mà còn giống như một "ốc đảo" giữa đô thị, nơi cư dân có thể tạm rời xa những bộn bề thường nhật. 

Xem khu

Tiện ích cảnh quan Khu Paris

Danh sách tiện ích

Giải trí (4)
  • CGV Vincom Ocean Park

    CGV Vincom Ocean Park là địa điểm lý tưởng để bạn và gia đình cùng nhau thưởng thức những bộ phim hay và hấp dẫn

  • Biển Hồ Nước Mặn

    Biển hồ nước mặn Vinhomes Ocean Park mở ra chuỗi hoạt động nghỉ dưỡng đa dạng, đem đến cơ hội du lịch biển ngay trong lòng Thủ đô cho người dân Hà Nội.

  • Hồ Ngọc Trai

    Hồ Ngọc Trai mang đến chuỗi hoạt động giải trí độc đáo, góp phần kiến tạo trải nghiệm nghỉ dưỡng đẳng cấp cho cộng đồng cư dân.

  • Vườn Nhật The Zenpark

    Vườn Nhật, thuộc khu The Zenpark - Vinhomes Ocean Park, là một "ốc đảo bình yên" mang đậm dấu ấn văn hóa Nhật Bản.

Trường học (4)
  • Vin University

    Vin University là trường đại học tinh hoa (đẳng cấp thế giới) và tư thục phi lợi nhuận đầu tiên tại Việt Nam.

  • Trường Tiểu học Tân Quang

    Trường Tiểu học Tân Quang sở hữu đội ngũ giáo viên giỏi, cơ sở vật chất khang trang và chương trình giáo dục chất lượng.

  • Trường mầm non Kiêu Kỵ

    Trường Mầm non Kiêu Kỵ là môi trường giáo dục, uy tín để phụ huynh gửi gắm con em mình.

  • The Dewey Schools - Ocean Park

    The Dewey Schools - Ocean Park là ngôi trường lý tưởng cho học sinh mong muốn được học tập trong môi trường giáo dục hiện đại, tiên tiến và phát triển toàn diện.

Y tế (2)
  • Bệnh viện Đa Khoa Gia Lâm

    Bệnh viện Đa khoa Gia Lâm là một bệnh viện hạng II công lập, thuộc Sở Y tế Hà Nội, được thành lập từ năm 2012.

Đối tác khu Paris

Phát triển dự án

Mitsubishi Corporation

Sống ở Vinhomes

Thông tin dự án và ưu đãi của Vinhomes

Hạ Tầng Vinhomes Hải Vân Bay Có Gì? Tọa Độ Vàng Kết Nối Đa Tầng Đón Sóng Đầu Tư 2026

Hạ tầng Vinhomes Hải Vân Bay sở hữu lợi thế kết nối đa tầng hiếm có, nơi quy tụ trọn vẹn mạng lưới giao thông đường bộ, đường sắt, đường thuỷ và đường không hiện đại nhất miền Trung. Sự cộng hưởng giữa hạ tầng đối ngoại xuyên suốt và hệ sinh thái tiện ích "all-in-one" đẳng cấp, Vinhomes Hải Vân Bay không chỉ thiết lập chuẩn mực an cư thượng lưu mà còn là bảo chứng thép cho tiềm năng đầu tư ngay từ giai đoạn 1.

Tin tức

24 thg 3, 2026

Đăng ký tham quan dự án và căn hộ mẫu Vinhomes

Đăng ký tham quan dự án và căn hộ mẫu Vinhomes

Để trải nghiệm trực tiếp "ngôi nhà mới "của bạn, mời Quý khách đăng ký tham quan

Đăng ký tham quan Liên hệ tư vấn
2 PN, Tòa PR5, khu Paris, Vinhomes Ocean Park
4,83 tỷ 75,41 triệu/m²

2 PN, Tòa PR5, khu Paris, Vinhomes Ocean Park

(function(w,d,s,l,i){w[l]=w[l]||[];w[l].push({'gtm.start': new Date().getTime(),event:'gtm.js'});var f=d.getElementsByTagName(s)[0], j=d.createElement(s),dl=l!='dataLayer'?'&l='+l:'';j.async=true;j.src= 'https://www.googletagmanager.com/gtm.js?id='+i+dl;f.parentNode.insertBefore(j,f); })(window,document,'script','dataLayer','GTM-N562KCW');

Đặt căn ngay để sở hữu ưu đãi chỉ có tại Vinhomes Market

Đặt lịch xem nhà ngay hôm nay để nhận ưu đãi tốt nhất
1900 998 823 Xem nhà Nhận tư vấn
(function(w,d,s,l,i){w[l]=w[l]||[];w[l].push({'gtm.start': new Date().getTime(),event:'gtm.js'});var f=d.getElementsByTagName(s)[0], j=d.createElement(s),dl=l!='dataLayer'?'&l='+l:'';j.async=true;j.src= 'https://www.googletagmanager.com/gtm.js?id='+i+dl;f.parentNode.insertBefore(j,f); })(window,document,'script','dataLayer','GTM-N562KCW');